配套设施
会议室 投影设备 网络 停车位 客梯 货梯 中央空调 开水间 可分割
房源描述
高端科研办公、独栋总部楼、我是房东我直租,承诺没有中介费
主导产业:集成电路、智能制造、大数据、云计算等
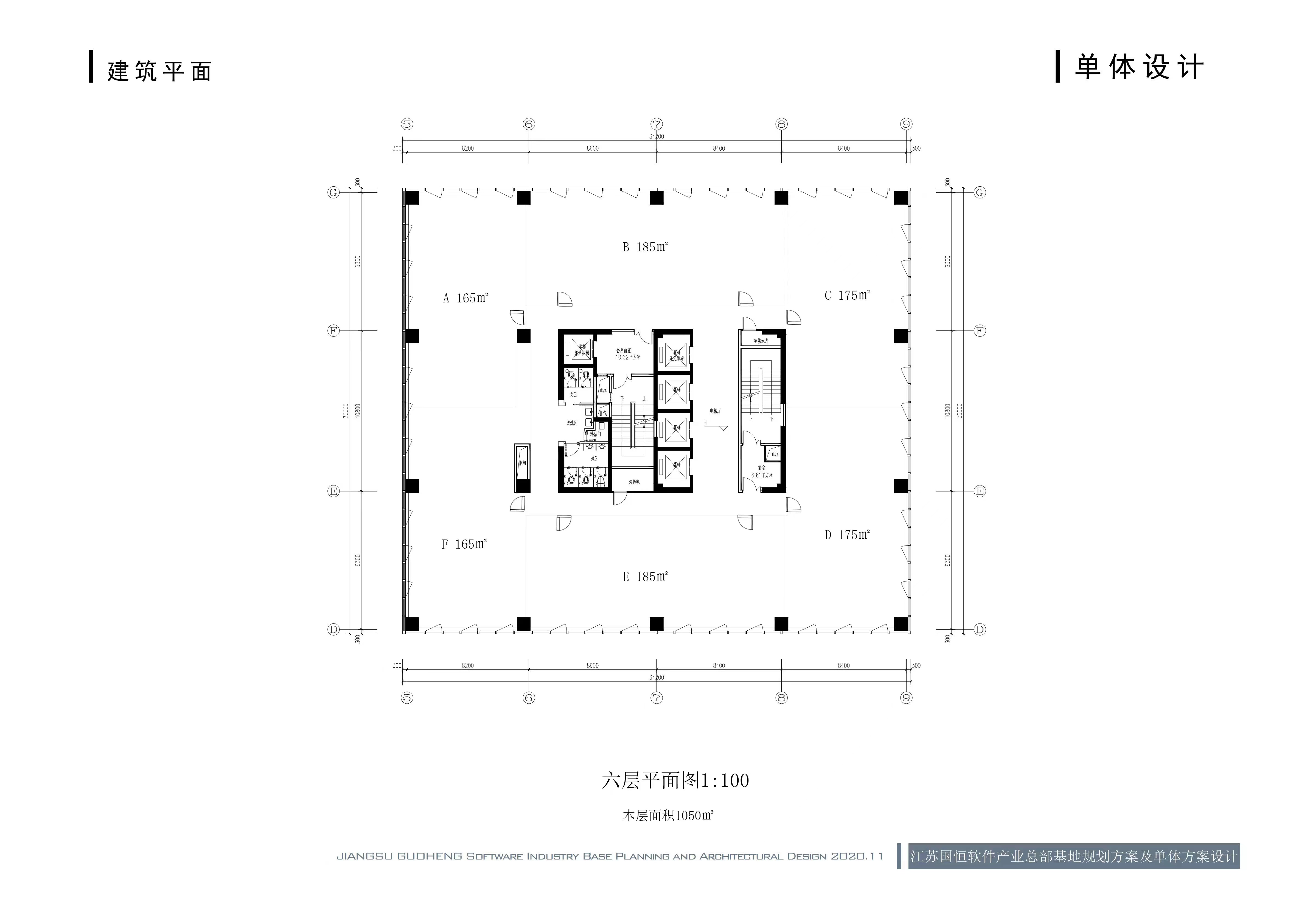
户型面积:165平、263平、半层526平,整层1052平
得房率:83%
绿化率:大于30%
租赁价格:1.4元每平米起(含税价)
免租期:3个月起
优惠政策:企业入驻享超长免租期,房补等,免费停车位
项目地址:团结路108号
硬件配套:超市、咖啡吧、书吧、活动室、不同规格会议室。
基础服务:企业入驻装修服务、工商、财务代账、法务对接、上门保洁、网管服务等。
产业服务:高质企业专享政策申报团队对接,资金申报、资质申报、人才申报、税收对接等内容。
园区介绍:江北自贸区,位于南京江北核心发展地段,与建业隔江相望,交通及其优越。驾车穿越长江隧道,五桥即到南京主城区,地铁10号线直达河西新城。园区高配硬件配套和提供软务,欢迎客户前来光临!
产业氛围:园区入驻大量领军型企业,氛围浓郁,产业氛围良好。
周边出租的写字楼
-
租 明发新城中心10号线工业大学地铁口精装修四个月房租
面积:500 ㎡ 1.80元/㎡/天
-
租 明发新城中心 精装带家具 2室1厅2卫 随时看房 有钥匙
面积:180 ㎡ 0.54元/㎡/天
-
租 交通便利 户型方正 可注册 配套设施齐全 浦口紫金特区写字楼出租
面积:350 ㎡ 0.70元/㎡/天
-
租 明发新城中心 200平精装修 电梯口精装修
面积:200 ㎡ 1.00元/㎡/天
-
租 工业大学地铁口 石林产业园 可注册 大面积出租
面积:1360 ㎡ 1.30元/㎡/天
-
租 浦口区 十号线工业大学地铁 新城金融大厦 全新装修
面积:287 ㎡ 2.20元/㎡/天
















